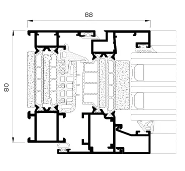
COR 80 INDUSTRIAL
Com 80 mm de profundidade de aro, responde às exigências climáticas mais severas graças à sua ruptura de ponte térmica com poliamidas tubulares de 45 mm e a incorporação de perfis de poliolefina reticulada tanto na gola do vidro como no interior do aro e folha.
Possibilidades
» Ferragem Seguraça
» Dobradiças ocultas
» Drenagem oculta
» Ferragem Seguraça
» Dobradiças ocultas
» Drenagem oculta
DESIGNER
As janelas industriais Cortizo COR 80 foram projetadas, testadas e habilmente projetadas para durar. Como um dos principais fabricantes de janelas e portas da Europa, a Cortizo oferece janelas industriais projetadas com alumínio em vez de PVC comum.
LOCALIZAÇÃO
PRODUTOS DE ALTA QUALIDADE
ORÇAMENTOS
GRÁTIS
ATUAMOS A NÍVEL INTERNACIONAL
EQUIPA
ESPECIALIZADA



