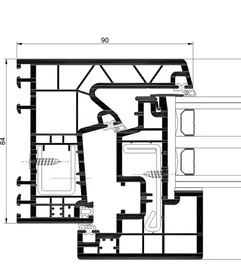
A 84 FOLHA OCULTA
Minimalismo em PVC, secção vista de 90 mm.
Sistema batente de 84 mm de profundidade e perfis de 6 câmaras interiores com espumas isolantes inseridas no aro e na folha que lhe permitem alcançar as melhores prestações térmicas do mercado.
A versão
A84 Folha Oculta
cujo valor de transmissão Uf parte de 1,11 W/m²K, permite um elemento central de 90 mm que iguala a secção lateral.
QUALIDADE
Assim como toda a gama PVC da CORTIZO, a nova A 84 Folha Oculta também se destaca pela qualidade dos perfis: Classe A
( espessura de parede de 3mm), Classe S
( apto para climas severos; óptimo comportamento diante da incidência solar) e Classe II
( máximo resistência ao impacto).
O SISTEMA A 84 FO
Apresenta uma elegante estética de linhas rectas e uma oferta ampla de gamas de acabamentos, em branco, cores, bicolor, imitação de madeira e metalizados”, acrescenta a empresa. Está disponível tanto em janelas como portas com as dimensões máximas por folha de 1400 mm de largura e 2500 de altura, peso até 130 kilos por folha, e possibilidade de abertura interior, batente, oscilo-batente, osciloparalela ou basculante.
LOCALIZAÇÃO
EQUIPA
ESPECIALIZADA
PRODUTOS DE ALTA QUALIDADE
ORÇAMENTOS
GRÁTIS
ATUAMOS A NÍVEL INTERNACIONAL



